MANTARAY BAY

- A 2-3 person retreat, with a stylish & smartly designed interior and internal ensuite.
- Fully off-grid capable: Solar, water and power systems built to keep you unplugged and exploring longer.
- Dual cooking spaces, making life both comfortable and convenient
rrp$70,995*
(from $250 per week)
Confidence with SUV's
Price Match Guarantee
More reasons to choose
SUV Pop Top Vans
DISCOVER THE SUV MANTARAY BAY
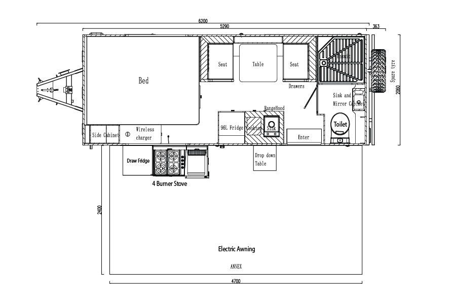
Discover the Mantaray Bay Caravan, your ultimate home away from home for unforgettable Australian adventures. This flexible 2/3-berth caravan is designed to adapt to your travel needs, featuring a comfortable main bed along with an internal lounge that converts into an additional bed when required.
Enjoy the convenience of a separate toilet and shower ensuite, plus the flexibility of both an internal kitchen and an external swing-around kitchen, allowing you to cook wherever suits your setup. With a generous 200L water capacity, the Mantaray Bay is well suited for extended off-grid stays.
Ample internal storage solutions throughout the caravan help keep everything organised and within easy reach. Built tough with an Australian Engineer approved chassis, drawbar, and suspension, this caravan delivers confidence and reliability across a variety of terrains. Explore Queensland and beyond in comfort with the Mantaray Bay.
If you have any questions or enquiries about the
SUV MANTARAY BAY, send
get in touch
with our friendly team.
*Price excludes on-road costs, and any available upgrades & extras. Dealer delivery fees may apply outside Townsville.












