13plus

- A compact pop top van, built for rugged adventures
- Lightest Hybrid in the SUV range, but built tough with SUV's famous Australian-engineered suspension
- Easy one-touch electric roof and simple electric roll-out awning
- Comes standard with air conditioning, 2 x lithium batteries, roof-mounted solar & more
rrp$58,995*
(from $206 per week)
Confidence with SUV's
Price Match Guarantee
More reasons to choose
SUV Pop Top Vans
DISCOVER THE SUV 13plus pop top
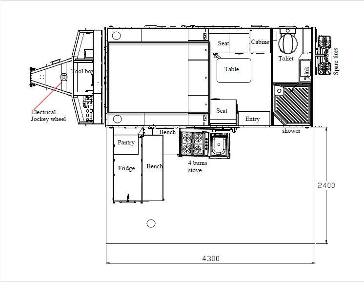
This compact Hybrid is built for rugged adventures! If you want a Hybrid that you can tow just about anywhere, the 13PLUS is up for the job. It’s the lightest Hybrid in the SUV range, but built tough with SUV’s famous Australian-engineered suspension (ideal for 4WDs with lower towing capacity like the Pajero or Prado).
The 13PLUS has recently had a makeover, to make it even better! It now includes
wireless charging dock for your devices,
electric roll out awnings & a
1000W Renogy Inverter, alongside other great standard inclusions.
After a big day of 4WDing, you’ll be able to relax within minutes of arriving at the camp site. The 13PLUS is so quick to set up, with an easy electric roof and simple electric roll-out awning. Jump into the enclosed shower for a quick refresh before cooking up a storm in the full stainless external kitchen. After a good night’s sleep on the innerspring queen mattress, you’ll be ready to hit the road again.
Prefer twin single beds? Check out the 13PLUS SB.
If you have any questions or enquiries about the
SUV 13PLUS,
get in contact
with our friendly team.
*Price excludes on-road costs, and any available upgrades & extras. Dealer delivery fees may apply outside Townsville.


















