suv island 16 family caravan

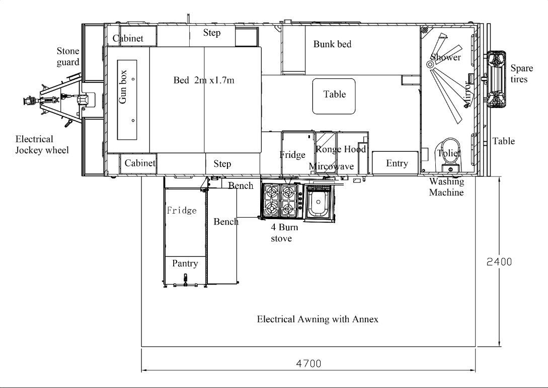
- Rare island bed layout in a family caravan, offering easy walk-around access
- Full-size bunk beds designed for kids
- Dual kitchen setup for easy family travel (complete external kitchen + internal coffee nook)
- Full-size ensuite with separate toilet and shower, plus a washing machine
rrp $77,995*
(from $275 per week)
Confidence with SUV's
Price Match Guarantee
More reasons to choose
SUV Caravans
DISCOVER THE SUV island 16 family
NB: The Talisman Island Family has been re-named to Island 16 Family
The SUV Island 16 Family is a premium family caravan that proves you don’t need a large footprint to enjoy space, comfort and clever design. Purpose-built for Queensland families, this 16ft family caravan delivers features often only found in much larger models.
While many family caravans in this size compromise on bed access or bathroom space, the Island 16 Family stands out with a true island bed for parents and full-size bunk beds for the kids, each with its own window, fan and reading light — creating a more comfortable and private space than the standard bunks seen in many Australian caravans.
Family meal times are equally well considered, thanks to the dual kitchen design. The stainless steel external kitchen is perfect for outdoor cooking, while inside, the coffee nook features an upright fridge/freezer, built-in microwave and sink for added convenience.
The
full-size family ensuite,
complete with separate shower and toilet rooms and an onboard washing machine, makes travelling with kids easier and more comfortable. Finished with quality materials and ambient mood lighting throughout, the Island 16 Family offers a refined, practical and family-friendly caravan built for real Australian adventures.
If you have any questions or enquiries about the
SUV Island 16 Family,
get in contact
with our friendly team.
*Price excludes on-road costs, and any available upgrades & extras. Dealer delivery fees may apply outside Townsville.
















