suv gr17.6 caravan

- Designed for classic Aussie caravanning road trips
- Spacious 17.6 ft couples' caravan
- Dual kitchen convenience and comfortable cafe-style seating
- Full ensuite with premium inclusions
rrp $81,995*
(from $290 per week)
Confidence with SUV's
Price Match Guarantee
More reasons to choose
SUV Caravans
DISCOVER THE SUV gr17.6 caravan
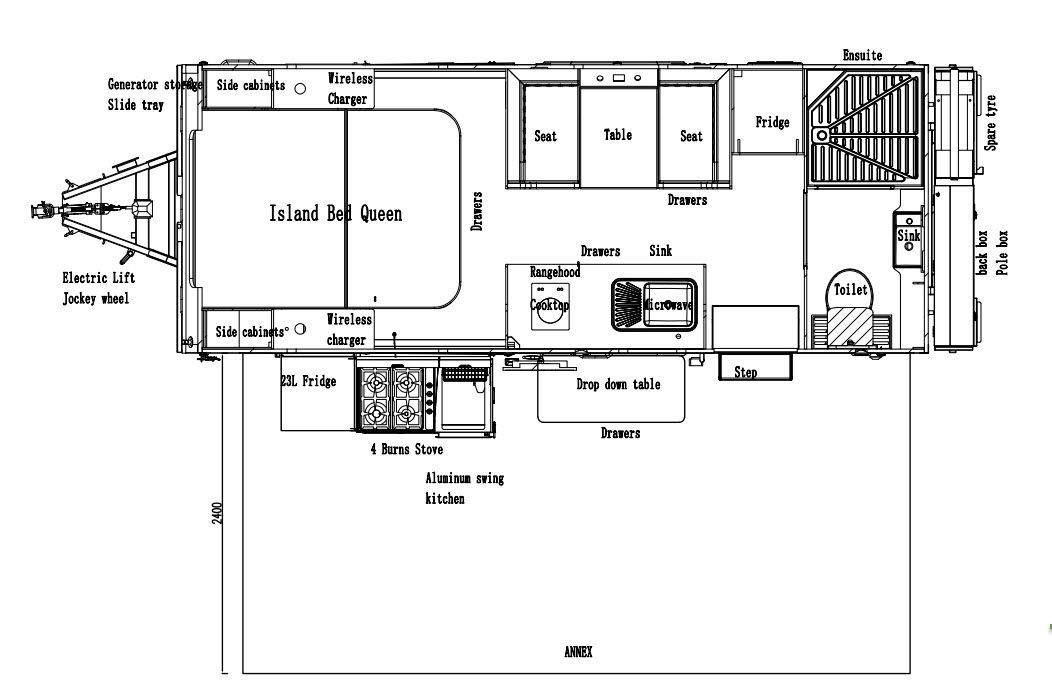
The SUV GR17.6 is part of SUV’s Gravel Roader caravan series, purpose-built for travellers who want comfort, space and practicality for caravan park touring and long highway journeys. The GR17.6 focuses on liveability, ease of towing and everyday comfort — making it an excellent choice for couples planning relaxed road trips across Australia.
At 17.6ft, the GR17.6 offers a versatile layout that maximises space without feeling oversized. The walk-around island bed for easy access is a standout feature, alongside the cafe-style seating.
Cooking is effortless thanks to the external kitchen with fridge drawer and push-button rollout awning as standard, complemented by an internal kitchenette featuring a built-in microwave, induction cooktop, full-size fridge/freezer and sink. The full ensuite completes the package, with separate shower and toilet rooms and a wall-mounted washing machine — delivering the kind of convenience typically reserved for larger touring caravans. The GR17.6 is versatility at its finest.
If you have any questions or enquiries about the
SUV GR17.6 Caravan,
get in contact
with our friendly team.
*Price excludes on-road costs, and any available upgrades & extras. Dealer delivery fees may apply outside Townsville.
























