13PLUS hr

- Based on the popular 13PLUS Pop Top van, but in a hard roof (HR) version
- Big features in a small footprint with generous storage plus separate toilet and shower
- Compact, lightweight off-road caravan designed to go wherever you can tow
- Premium comfort and smart tech including a queen island bed, swing-out kitchen, fridge slide and 2000W inverter
rrp $60,995*
(from $219 per week)
Confidence with SUV's
Price Match Guarantee
More reasons to choose
SUV Caravans
DISCOVER THE SUV 13plus hr caravan
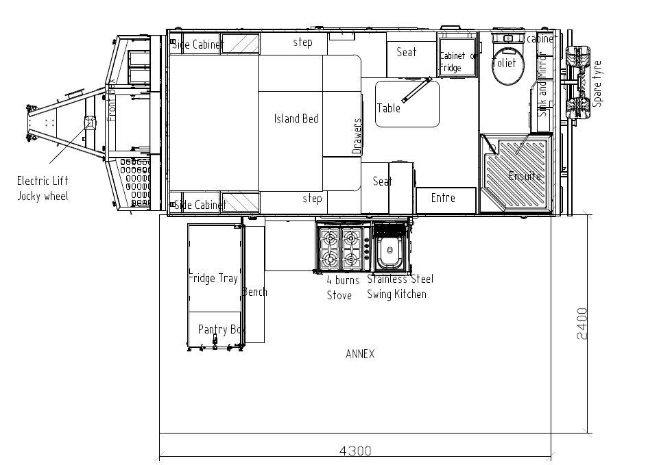
Born from the hugely popular 13PLUS PopTop van, the 13PLUS HR Caravan delivers everything owners love — with a little extra comfort and capability. It’s packed with proven features, refined styling and thoughtful upgrades, making it the perfect balance of compact size and premium inclusions.

Designed for rugged adventure, the 13PLUS HR is the lightest off-road caravan in the SUV range, built to be confidently towed just about anywhere. With Australian-engineered and certified suspension, chassis and drawbar, it’s made to handle tough terrain while still offering a smooth, stable towing experience.
Inside and out, the 13PLUS HR is loaded with practical luxury. Enjoy SUV’s signature external swing-out kitchen and fridge slide, a comfortable queen island bed, wireless charging for all your devices and a powerful 2000W Renogy inverter. With ample storage throughout and the convenience of separate toilet and shower rooms, this compact caravan punches well above its weight — making it a standout choice for travellers who want more, without going bigger.
If you have any questions or enquiries about the
SUV 13PLUS HR,
get in contact
with our friendly team.
*Price excludes on-road costs, and any available upgrades & extras. Dealer delivery fees may apply outside Townsville.
























